Millwork

Detailing

Transforming concepts into precision shop drawings.
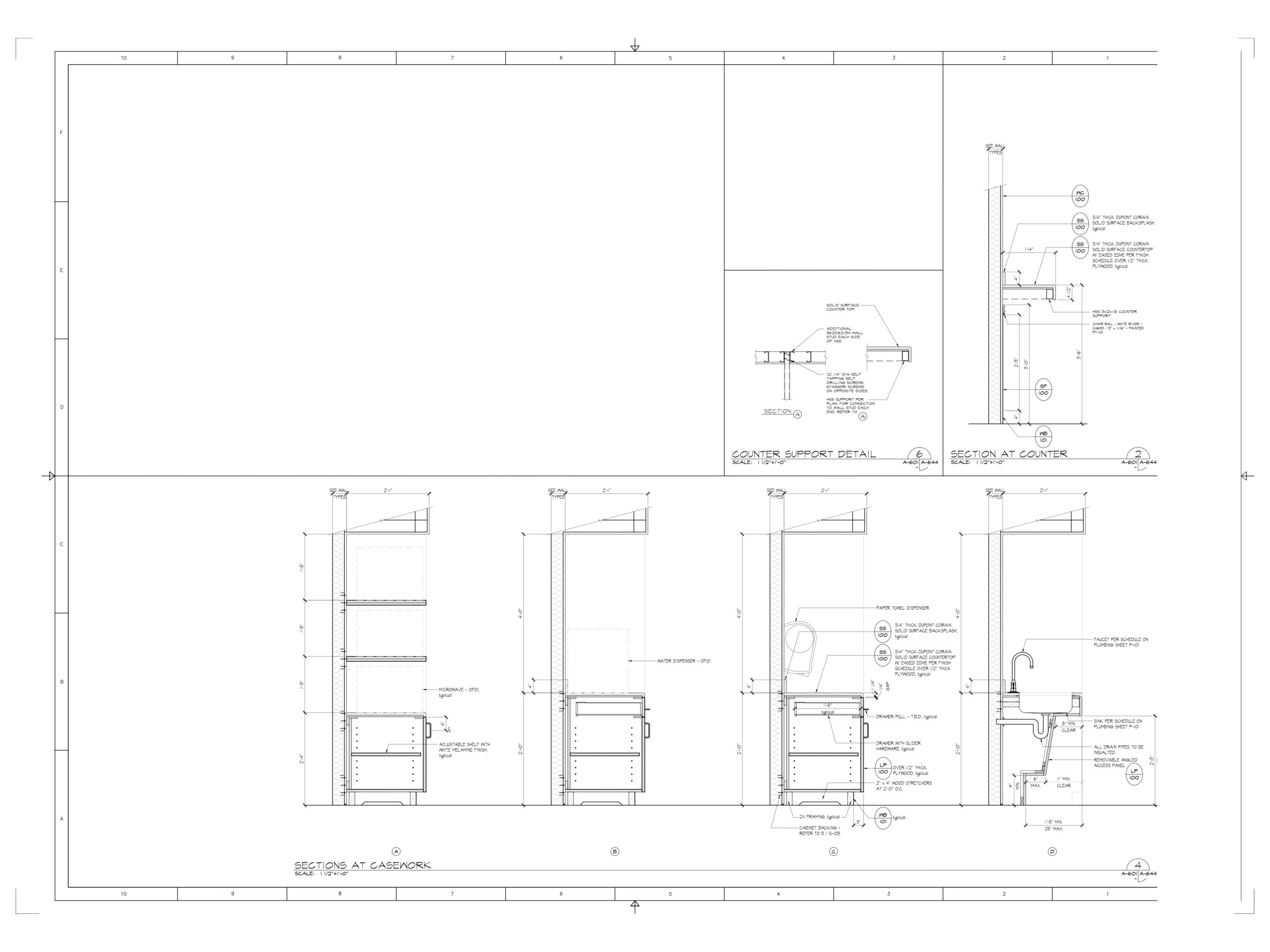
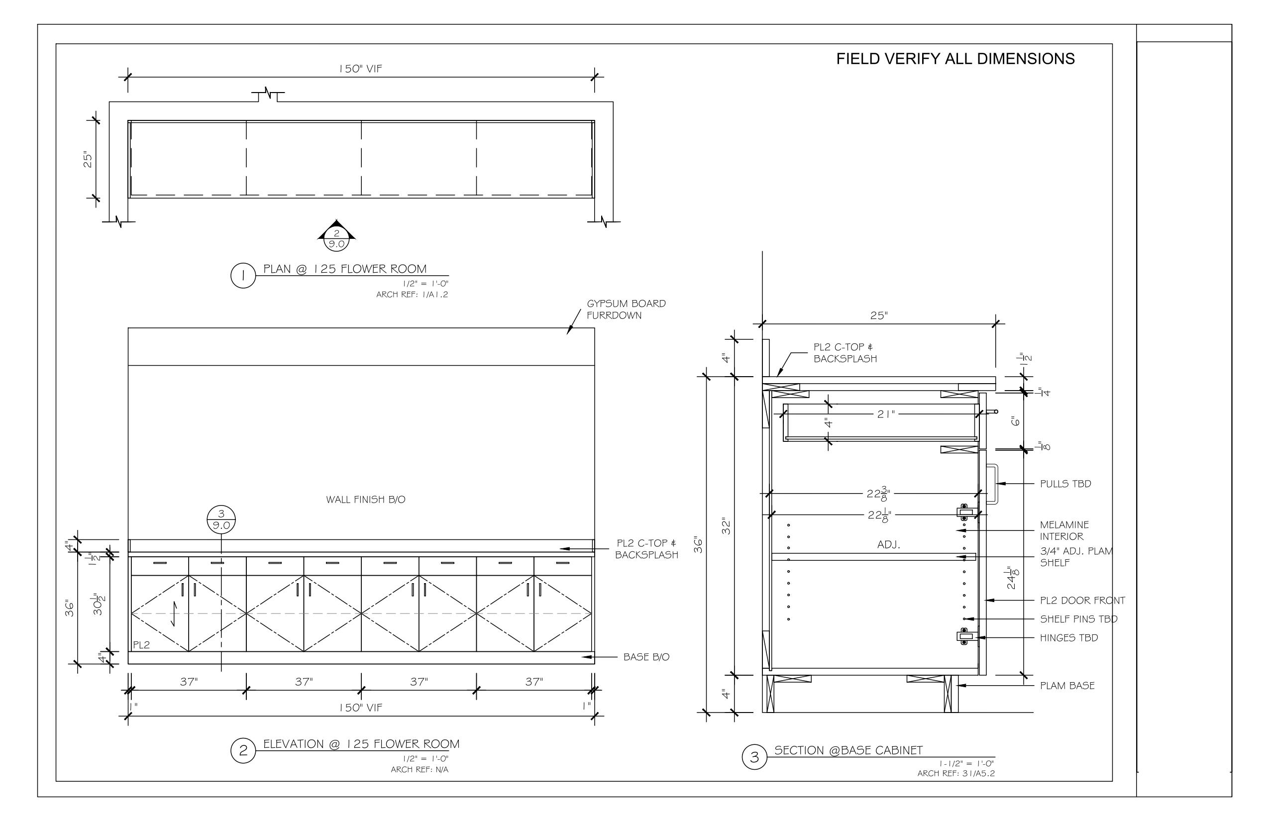
Our Millwork Detailing team converts your design intent into fabrication-ready drawings with unmatched accuracy and craftsmanship. From cabinet designs and staircases to paneling, wainscoting, and custom joinery, every line we draw ensures flawless production and installation. We work closely with millwork and joinery firms to streamline workflows, minimize rework, and uphold the designer’s creative vision — down to the smallest molding detail.
Tools: AutoCAD, Revit
Deliverables: Shop Drawings, Fabrication Details, Assembly Layouts

Precision in every line. Creativity in every detail. From concept to construction — we turn your designs into build-ready realities. We handle the details, so you can focus on great design. Fast, accurate, and reliable detailing — designed for your success.

Precision in every line. Creativity in every detail. From concept to construction — we turn your designs into build-ready realities. We handle the details, so you can focus on great design. Fast, accurate, and reliable detailing — designed for your success.

Precision in every line. Creativity in every detail. From concept to construction — we turn your designs into build-ready realities. We handle the details, so you can focus on great design. Fast, accurate, and reliable detailing — designed for your success.

Precision in every line. Creativity in every detail. From concept to construction — we turn your designs into build-ready realities. We handle the details, so you can focus on great design. Fast, accurate, and reliable detailing — designed for your success.

What We Offer

Our Millwork Detailing Services cover every aspect of architectural woodwork and custom fabrication: 

  • Cabinet Design: Comprehensive layouts and sections for kitchens, wardrobes, and bespoke cabinetry.

  • Staircase Design: Detailed fabrication drawings ensuring perfect rise, tread, and railing alignment.

  • Paneling & Wainscoting: Elegant wall treatments designed for both aesthetic and technical perfection.

  • Custom Millwork: Tailor-made joinery details that capture the unique essence of your design vision.

Provide Optimal Services

Why use our service?

InOutSourcing

\

Expertise Across Disciplines — A team proficient in architecture, interiors, and BIM ensures holistic project delivery.
Trusted by Global Architects — Our precision detailing has supported international studios and landmark projects.
25+ Years of Combined Experience — A legacy of technical excellence and long-term industry relationships.
Client-Centric Collaboration — Every project begins with understanding your workflow, timeline, and standards.
On-Time, Every Time — We operate across time zones, ensuring 24/7 availability for seamless coordination
Innovation-Driven Approach — Using the latest tools and BIM technology to maximize design efficiency and accuracy.

Tools & Software

Our experts use industry-leading software to deliver precision and consistency across every drawing set:

  • AutoCAD – for detailed 2D documentation and shop drawings

  • Revit – for integrated 3D coordination and model-based detailing

  • Navisworks – for clash detection and project visualization when requ

Contact Us!

Info@inoutsourcing.com

NEW DELHI OFFIICE:
C64, Rajouri Garden, New Delhi - 110027
DUBAI OFFICE:
717 Lavender Building, Dubai
Phone & Mail Support 24/7
Mail: info@inoutsoutsourcing
Phone number: +971-544033343, +91-8750511434
Prev
Next
Select the fields to be shown. Others will be hidden. Drag and drop to rearrange the order.
  • Image
  • SKU
  • Rating
  • Price
  • Stock
  • Availability
  • Add to cart
  • Description
  • Content
  • Weight
  • Dimensions
  • Additional information
Click outside to hide the comparison bar
Compare